An elevation view of 10x19 restaurant cum hotel building is given in this Autocad drawing file. Download now.
Description
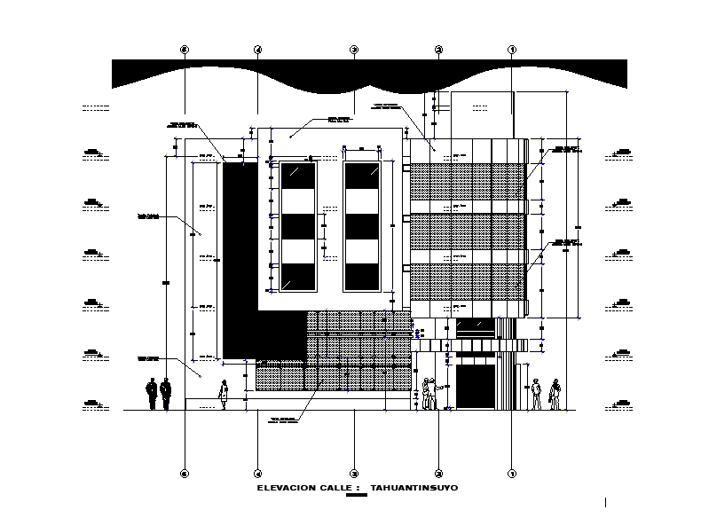
An elevation view of 10x19 restaurant cum hotel building is given in this Autocad drawing file. This is G+4 restaurant cum hotel building. Ground and first floor is provided for restaurant. Second and third floor is provided for hotel rooms. For more details download the Autocad drawing file. Thank you for downloading the Autocad drawing file and other CAD program files from our website.
Uploaded by:
