25x18m apartment cum office plan is given in this Autocad drawing file. Download now.
Description
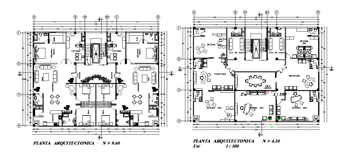
25x18m apartment cum office plan is given in this Autocad drawing file. This is G+4 apartment building. In each floor three houses are available. These houses are consists of kitchen, dining area, living hall, master bedroom with attached toilet, and study room is available. In the office floor reception, office cabins, and meeting area is available. For more details download the Autocad drawing file. Thank you for downloading the Autocad drawing file and other CAD program files from our website.
Uploaded by:

