30x21m house plan is given in this Autocad drawing file. Download now.
Description
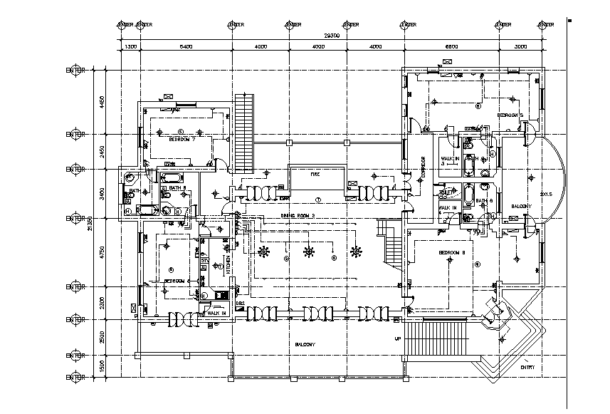
30x21m house plan is given in this Autocad drawing file. This is single story house building. Electrical layout of the house plan is given in this drawing model. For more details download the Autocad drawing file. Thank you for downloading the Autocad drawing file and other CAD program files from our website.
Uploaded by:

