A section view of 45x30m villa building is given in this Autocad drawing file. Download now.
Description
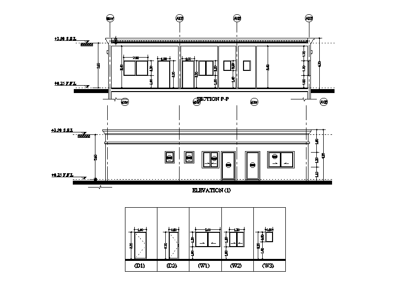
A section view of 45x30m villa building is given in this Autocad drawing file. This is G+2 villa building. Swimming pool, open kitchen, family lounge area, hall, guest room with attached toilet, master bedroom with attached toilet, guest room with attached toilet, kid’s room, common toilet, maid room, driver room and other details are mentioned. For more details download the Autocad drawing file. Thank you for downloading the Autocad drawing file and other CAD program files from our website.
File Type:
DWG
File Size:
1.2 MB
Category::
Structure
Sub Category::
Section Plan CAD Blocks & DWG Drawing Models
type:
Gold
Uploaded by:

