21x13m villa house plan has been given in this Autocad drawing file. Download now.
Description
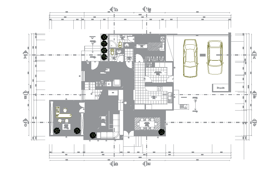
21x13m villa house plan has been given in this Autocad drawing file. This is G+1 villa building. In this villa plan, the living area, kitchen, dining area, patio service, master bedroom with attached toilet, kid’s room, guest room and other details are available. For more details download the Autocad drawing file. Thank you for downloading the Autocad files and other CAD program files from our website.
Uploaded by:

