6x15m house plan is given in this Autocad drawing file. Download now.
Description
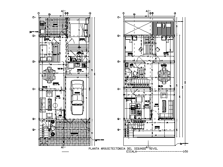
6x15m house plan is given in this Autocad drawing file. This is G+1 house building. In each floor one house is available. These house are consists of the car parking, living area, kitchen, dining area, patio, master bedroom, kid’s room, and common toilet is available. For more details download the Autocad drawing file. Thank you for downloading the Autocad files and other CAD program files from our website.
Uploaded by:

