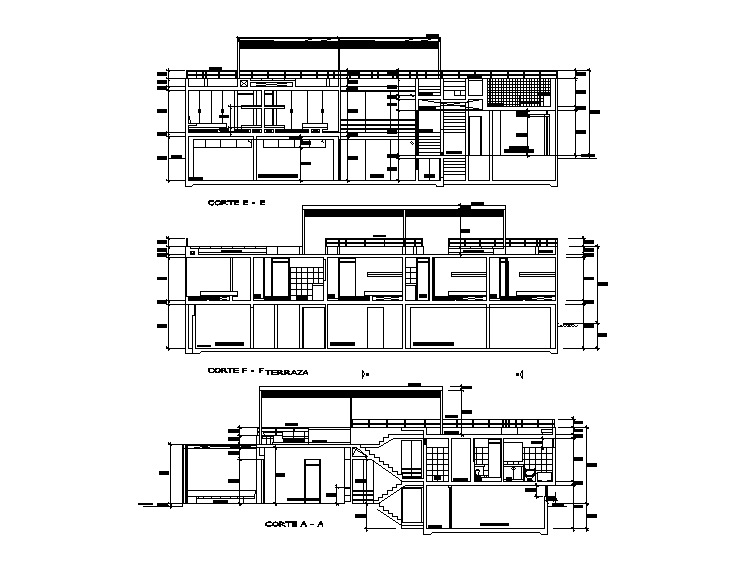
A section view of 20x20m house plan is given in this Autocad drawing file.Download now.
Description
A section view of 20x20m house plan is given in this Autocad drawing file. In this 7 bedrooms are available. In this plan, the living area, kitchen, dining area, family lounge, 7 bedrooms, common toilet, attached toilet and other details are available. For more details download the Autocad drawing file. Thank you for downloading the Autocad files and other CAD program files from our website.
File Type:
DWG
File Size:
529 KB
Category::
Structure
Sub Category::
Section Plan CAD Blocks & DWG Drawing Models
type:
Gold
Uploaded by:

