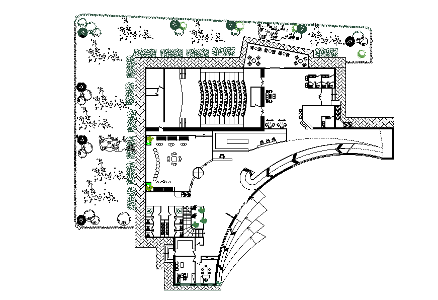
College auditorium plan is given in this Autocad DWG drawing file. Download now.
Description
College auditorium plan is given in this Autocad DWG drawing file. This is separate building. In this front stage, rooms, rest room for male & female and other details are available in the plan. For more details download the Autocad drawing file. Thank you for downloading the Autocad files and other CAD program files from our website.
Uploaded by:

