30x40m financial office plan is given in this Autocad drawing file. Download now.
Description
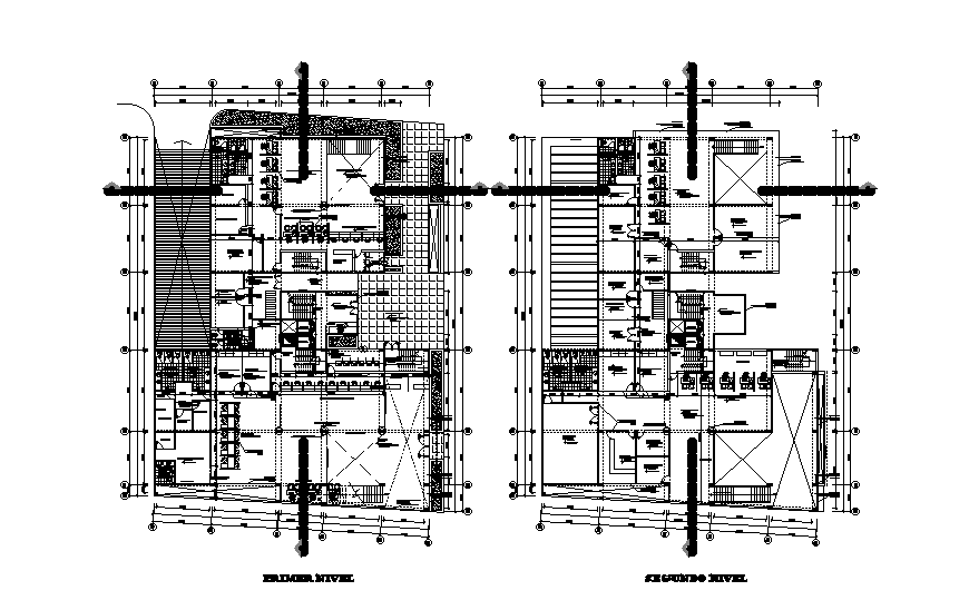
30x40m financial office plan is given in this Autocad drawing file. This is G+9 financial office building. In this director room, secretary room, PA room, employee cabins, rest room for male & female, meeting hall, customer waiting area, reception and other details are available. For more details download the Autocad drawing file. Thank you for downloading the Autocad files and other CAD program files from our website.
Uploaded by:

