11m height of the office building corte view is given in this Autocad drawing file. Download now.
Description
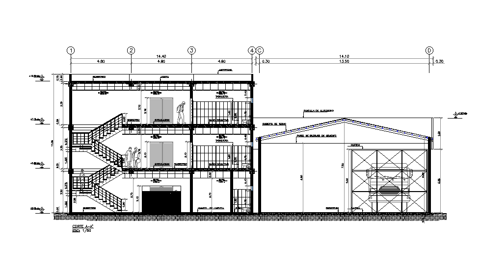
11m height of the office building corte view is given in this Autocad drawing file. This is G+2 office building. In this building, employee cabins, rest room for male & female, meeting hall, customer waiting area, director room, secretary room, PA room, reception and other details are available. For more details download the Autocad drawing file. Thank you for downloading the Autocad files and other CAD program files from our website.
Uploaded by:

