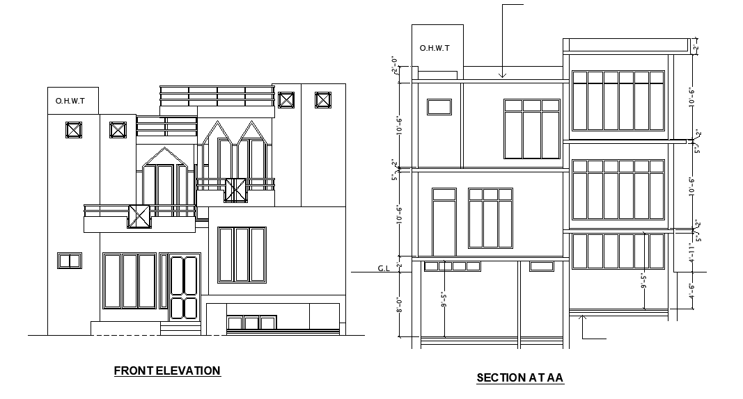
An elevation of G+1 house building is given in this Autocad 2D DWG drawing file. Download now.
Description
An elevation of G+1 house building is given in this Autocad 2D DWG drawing file. The section view of the house building is given. Total height of the building is 35’. For more details download the Autocad drawing file. Thank you for downloading the Autocad files and other CAD program files from our website.
Uploaded by:

