47x25m college plan is given in this Autocad drawing file. Download now.
Description
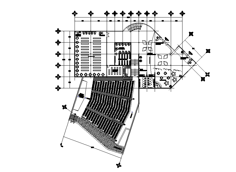
47x25m college plan is given in this Autocad drawing file. This is single story college building. Class rooms, computer lab, rest room for male & female, seminar hall, auditorium and other details are available. For more details download the Autocad drawing file. Thank you for downloading the Autocad files and other CAD program files from our website.
Uploaded by:

