21x15m college administrative office plan is given in this Autocad drawing file. Download now.
Description
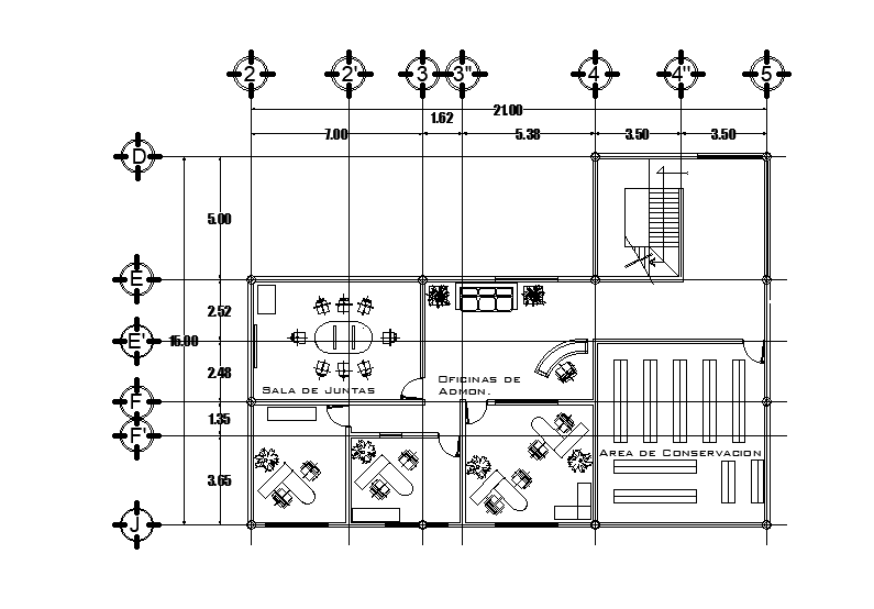
21x15m college administrative office plan is given in this Autocad drawing file. The length and breadth of the plan is 21m and 15m respectively. In this plan, account section, office area, conference room, meeting area and other details are available. For more details download the Autocad drawing file. Thank you for downloading the Autocad files and other CAD program files from our website.
Uploaded by:

