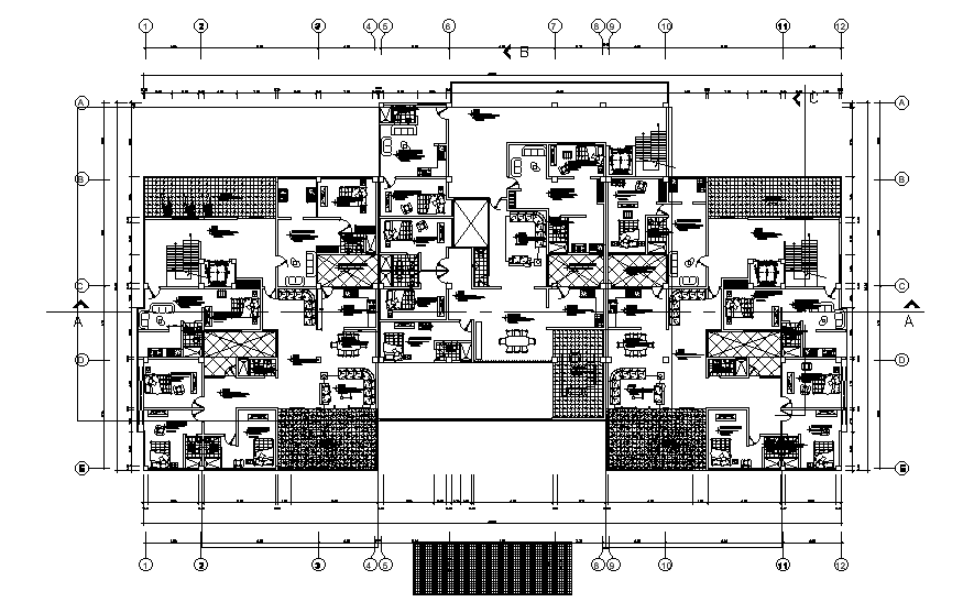
The apartment layout plan derived in this AutoCAD drawing. Download 2d autocad drawing file.
Description
The apartment layout plan derived in this AutoCAD drawing. which includes 1 BHK, 2 BHK, 3 BHK, And 4 BHK house plan with all furniture design. also has 2 lift and staircase facilities available in CAD drawing dwg file. Thank you for downloading the Autocad file and other CAD program files from our website.
Uploaded by:
