This AutoCAD file separated a 2bhk bungalow detail drawing. Download 2d autocad drawing file.
Description
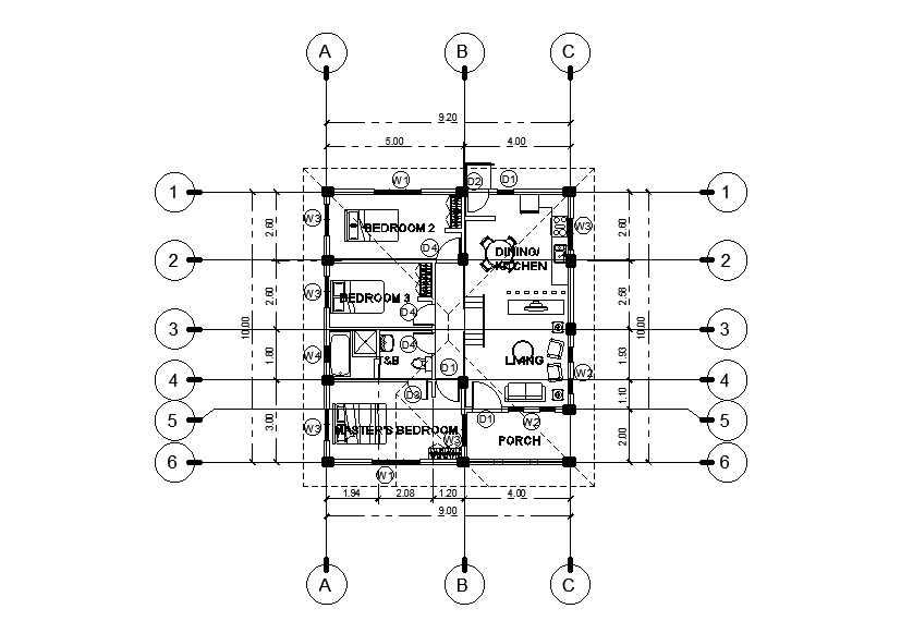
This AutoCAD file separated a 2bhk bungalow detail drawing. this file consists of porch, living, kitchen, bedroom detail with staircase detail presented, and also dimensions and specifications are given. this can be used by architects and engineers. Download this 2d AutoCAD drawing file.
Uploaded by:
