Restaurant layout plan presented in this AutoCAD drawing file. Download 2d autocad drawing file.
Description
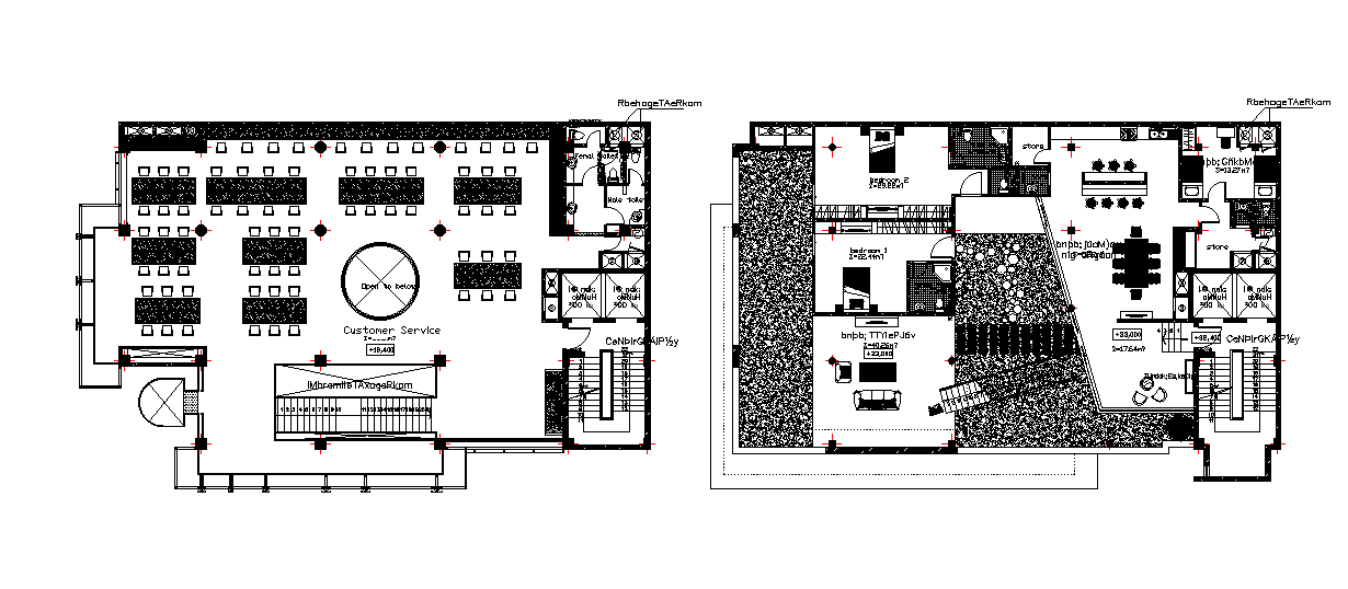
Restaurant layout plan presented in this AutoCAD drawing file. which includes kitchen, lift, staircase, dining area, toilet, and main entry with all furniture design. also has an additional layout plan detail dwg file. Thank you for downloading the Autocad files and other CAD program files from our website.
Uploaded by:

