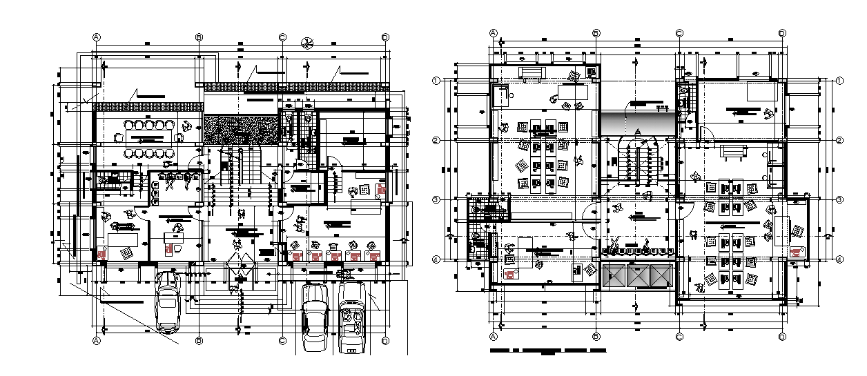
Commercial office ground floor plan describes in this file. Download 2d autocad drawing file.
Description
Commercial office ground floor plan describes in this file. Centerline detail CAD drawing includes toilet, pantry, staircase, lift, and entrance lobby. the additional drawing such as column layout plan and wall detail. download DWG file of commercial building layout plan drawing DWG file. Thank you for downloading the AutoCAD dwg drawing file from our website.
File Type:
DWG
File Size:
4.2 MB
Category::
Interior Design
Sub Category::
Modern Office Interior Design
type:
Gold
Uploaded by:

