A section view of 30x12m office cum guest house building is given in this Autocad drawing file. Download now.
Description
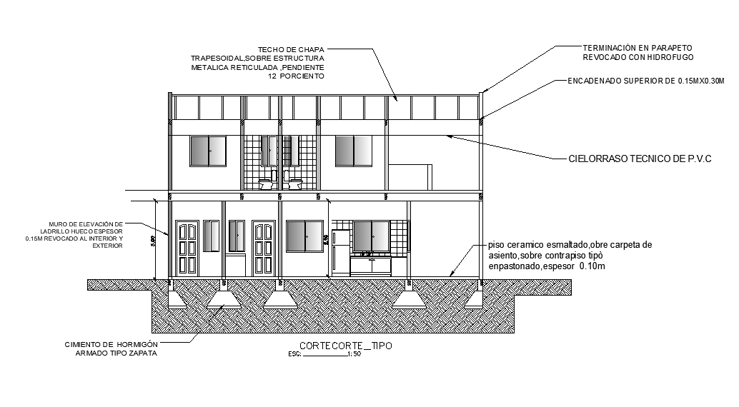
A section view of 30x12m office cum guest house building is given in this Autocad drawing file. This is G+1 house building. Ground floor is provided for office and first floor is provided for house. In the ground floor office work area, water closet for male & female, manager room and other details are mentioned. For more details download the Autocad drawing file. Thank you for downloading the Autocad files and other CAD program files from our website.
Uploaded by:

