7x14m home plan is given in this Autocad drawing file. Download now.
Description
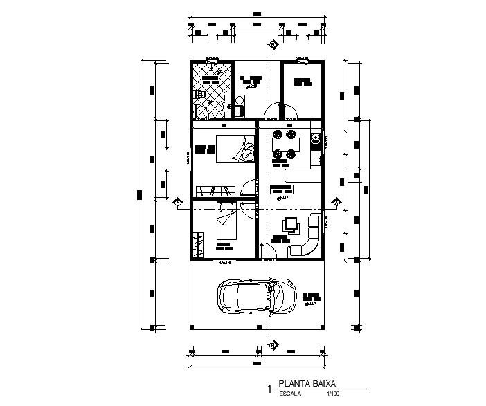
7x14m home plan is given in this Autocad drawing file. This is G+1 house building. In this ground floor, the living area, dining hall, store room, master bedroom with attached toilet, common toilet, guest room, kitchen, and other details are mentioned. For more details download the Autocad drawing file. Thank you for downloading the Autocad files and other CAD program files from our website.
Uploaded by:

