15x20m college entrance plan is given in this Autocad drawing file. Download now.
Description
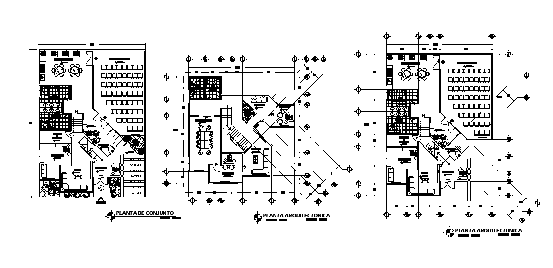
15x20m college entrance plan is given in this Autocad drawing file. This is G+2 college building plan. In this college plan, the director room, secretary room, account section, reception, waiting hall, professor cabins, water closet for male & female, cafeteria and other details are given. For more details download the Autocad file. Thank you for downloading the Autocad file and other CAD program files from our website.
Uploaded by:
