Luxury villa plan has been in this Autocad drawing file. Download now.
Description
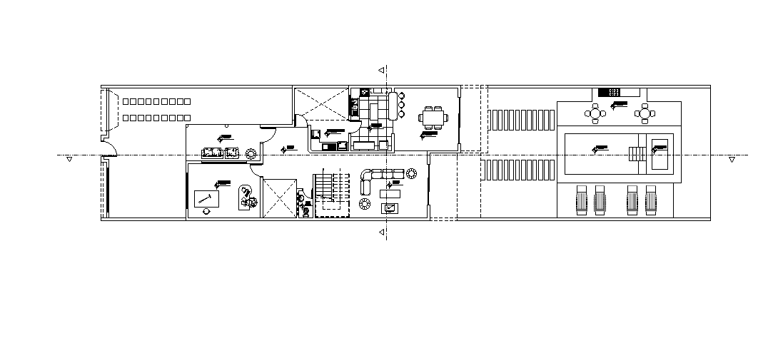
Luxury villa plan has been in this Autocad drawing file. This is ground floor plan. This is G+1 villa building. In this villa plan, kitchen, dining area, car parking, living area, service area, family lounge, patio, breakfast dining area and common toilet is available. For more details download the Autocad file. Thank you for downloading the Autocad file and other CAD program files from our website.
Uploaded by:

