8x18m villa plan has been given in this Autocad drawing file. Download now.
Description
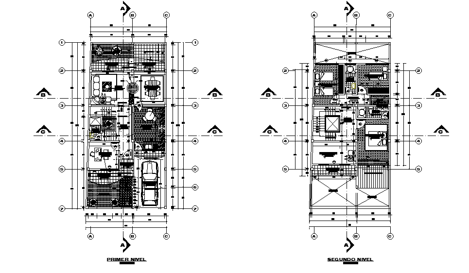
8x18m villa plan has been given in this Autocad drawing file. This is G+2 house building. In this plan, the living area, kitchen, dining hall, study room, patio, garden, terrace way, master bedroom with attached toilet, guest room, kid’s room and common toilet is available. For more details download the Autocad file. Thank you for downloading the Autocad file and other CAD program files from our website.
Uploaded by:

