37x30m office plan is given in this Autocad drawing file. Download now.
Description
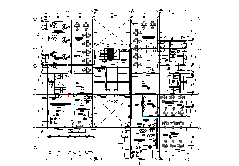
37x30m office plan is given in this Autocad drawing file. The length and breadth of the plan is 37m and 30m respectively. In this plan, project deputy manager, the director cabin, secretary cabin, HR department, control room, admin office, logistic area, rest room for male & female, reception, waiting hall and other details are available. For more details download the Autocad file. Thank you for downloading the Autocad file and other CAD program files from our website.
Uploaded by:

