115x13m office plan is given in this Autocad drawing file. Download now.
Description
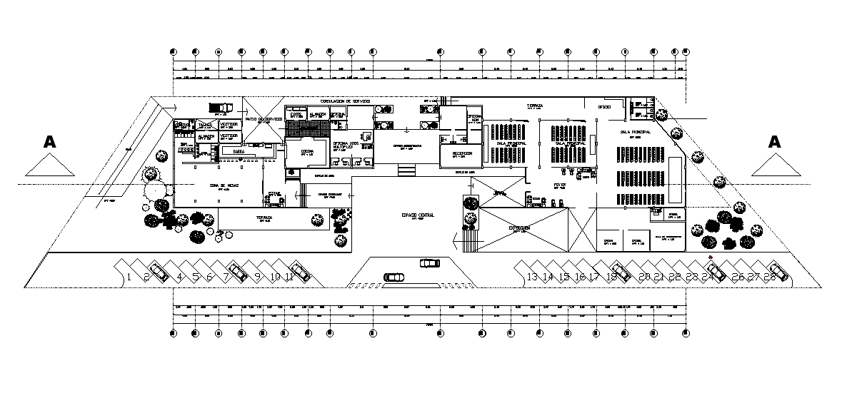
115x13m office plan is given in this Autocad drawing file. Car parking is provided with the lanes. In this office building, the reception, waiting hall, rest room for male & female, office cabins, manager room and other details are given. For more details download the Autocad file. Thank you for downloading the Autocad file and other CAD program files from our website.
Uploaded by:
