18x29m architecture hotel plan is given in this Autocad drawing file. Download now.
Description
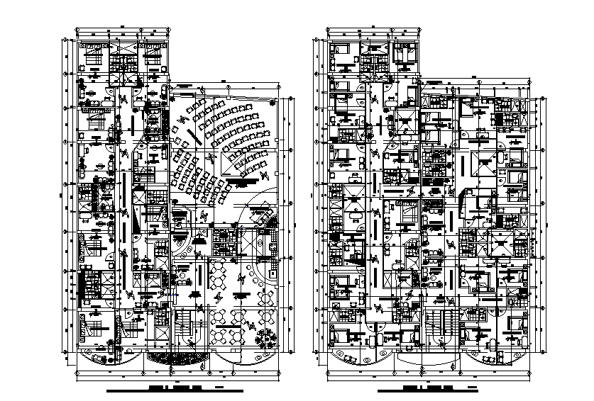
18x29m architecture hotel plan is given in this Autocad drawing file. This is G+1 hotel building. Cafeteria, dining hall, rest room for male & female, bedrooms with attached toilet, reception, waiting area, hall and other details are mentioned in this drawing model. For more details download the Autocad file. Thank you for downloading the Autocad file and other CAD program files from our website.
Uploaded by:

