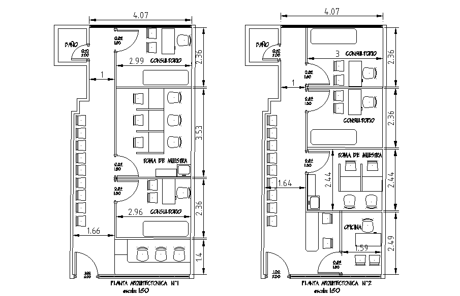
4x10m office plan is given in this Autocad drawing file. Download now.
Description
4x10m office plan is given in this Autocad drawing file. This is G+1 office building. In this plan consulting rooms, small meeting hall, water closet and office cabins are available. For more details download the Autocad file. Thank you for downloading the Autocad file and other CAD program files from our website.
Uploaded by:

