12m height of the apartment building is given in this Autocad drawing file. Download now.
Description
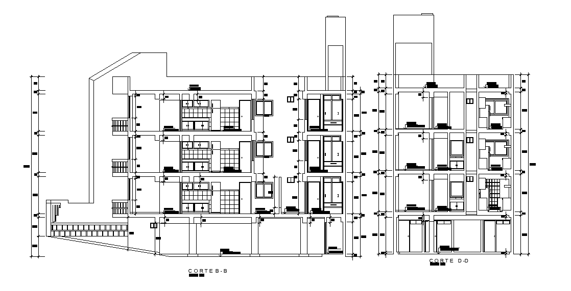
12m height of the apartment building is given in this Autocad drawing file. This is G+3 apartment building. Kitchen, dining area, living hall, master bedroom, guest room, common toilet, garden, patio service, and car parking is available. For more details download the Autocad drawing file. Thank you for downloading the Autocad files and other CAD program files from our website.
Uploaded by:

