Section detail of restaurant AutoCAD drawing presented in this file. Download 2d autocad drawing file.
Description
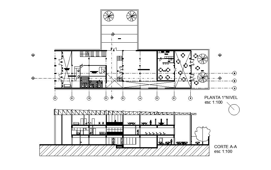
Section detail of restaurant AutoCAD drawing presented in this file. which consist of the furniture layout, main hall, services, and utilities detail with furniture detail and entrance door, window marking, and glass curtain wall design. Download the AutoCAD file now. Thanks for downloading the file and another CAD program from the cadbull.com website.
Uploaded by:
