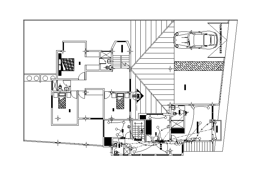
An electrical layout of 10x20m house plan is given in this Autocad drawing file. Download now.
Description
An electrical layout of 10x20m house plan is given in this Autocad drawing file. This is G+2 house building. Kitchen, dining area, living hall, master bedroom with attached toilet, kid’s room, common toilet, car parking, patio service is available. For more details download the Autocad drawing file. Thank you for downloading the Autocad files and other CAD program files from our website.
Uploaded by:

