31x20m hotel plan is given in this Autocad drawing file. Download now.
Description
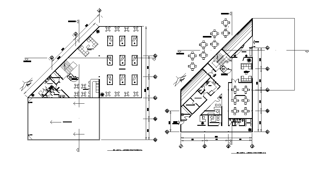
31x20m hotel plan is given in this Autocad drawing file. This is G+1 hotel building. In this kitchen, dining area, store room and other details are mentioned. For more details download the Autocad drawing file. Thank you for downloading the Autocad files and other CAD program files from our website.
Uploaded by:

