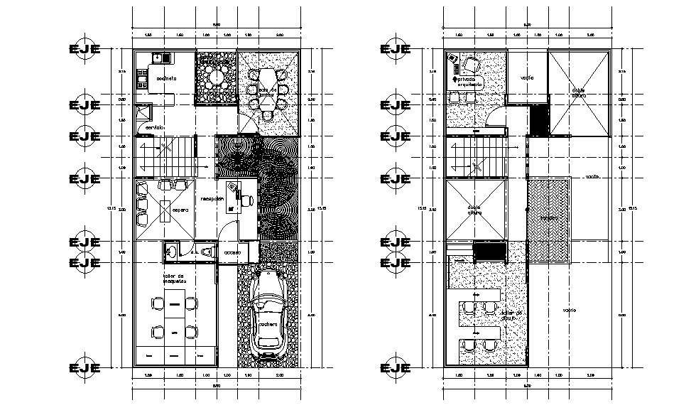
8x16m office plan is given in this Autocad drawing file. Download now.
Description
8x16m office plan is given in this Autocad drawing file. This is G+1 office building. Reception, waiting area, office cabins, rest room for male & female, small conference room and other details are given in this drawing model. For more details download the Autocad drawing file. Thank you for downloading the Autocad files and other CAD program files from our website.
Uploaded by:
