2x13m local institution is given in this drawing model. Download now.
Description
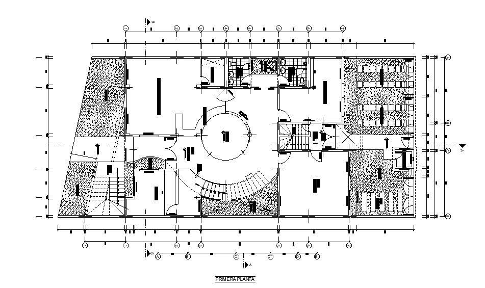
2x13m local institution is given in this drawing model. This is ground floor institution building. Reception, waiting hall, secretary room, director room, hall, car port and other details are given drawing model. For more details download the Autocad drawing file. Thank you for downloading the Autocad files and other CAD program files from our website.
Uploaded by:

