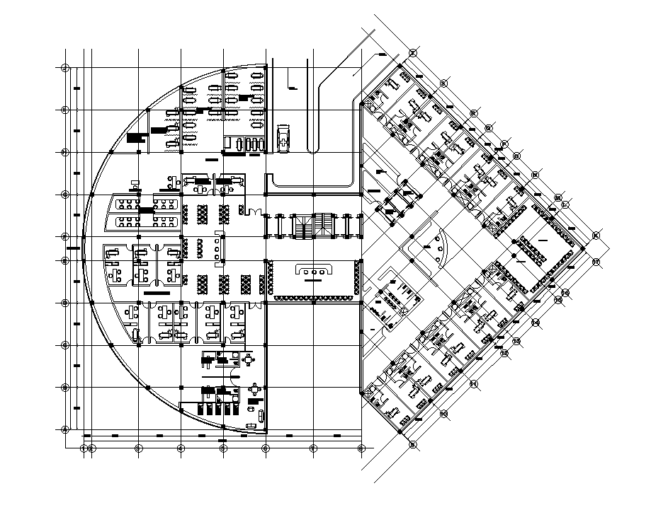
85x59m third floor hospital plan is given in this Autocad drawing file. Download now.

85x59m third floor hospital plan is given in this Autocad drawing file.  Download now.
Profile

Uploaded by:

Pavithra

Description
85x59m third floor hospital plan is given in this Autocad drawing file. This is G+4 hospital building plan with helipad. In this floor patient’s beds with attached toilet, doctor consulting rooms, Contagious infectious waste warehouse, Ascensol for sterile material and equipment, and other details are available. For more details download the Autocad file. Thank you for downloading the Autocad file and other CAD program files from our website.
Profile

Uploaded by:

Pavithra

find Latest

Related Files

WhatsApp Chat