Back section view of rest room is given in this Autocad drawing file. Download now.
Description
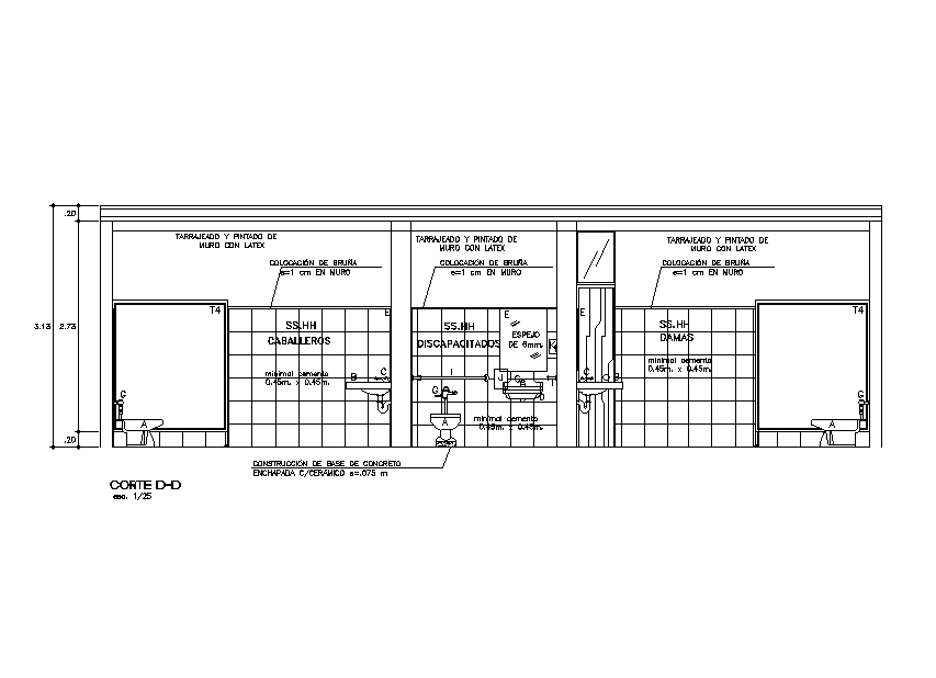
Back section view of rest room is given in this Autocad drawing file. Total height of the this partition is 1.9m. Total height of the building is 3.15m. This is given for Airport building. In this separate rest room is provided for disabled person, male & female. For more details download the Autocad file. Thank you for downloading the Autocad file and other CAD program files from our website.
File Type:
DWG
File Size:
1.4 MB
Category::
Structure
Sub Category::
Section Plan CAD Blocks & DWG Drawing Models
type:
Gold
Uploaded by:

