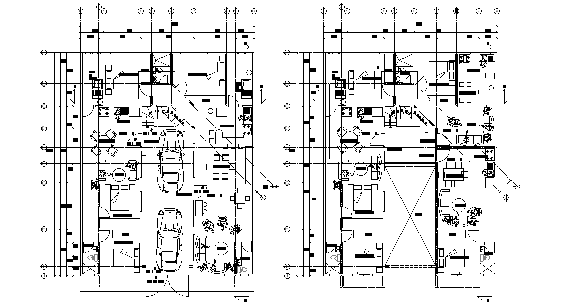
13x17m house plan is given in this Autocad file. Download now.
Description
13x17m house plan is given in this Autocad file. This is g+1 house building. Each floor two houses are available. These houses are consists of kitchen, dining hall, living area, master bedroom with a attached toilet, kid’s room, guest room, car parking, and patio. For more details download the Autocad file. Thank you for downloading the Autocad file and other CAD program files from our website.
Uploaded by:
