19x10m villa ground floor plan is given in this Autocad drawing file. Download now.
Description
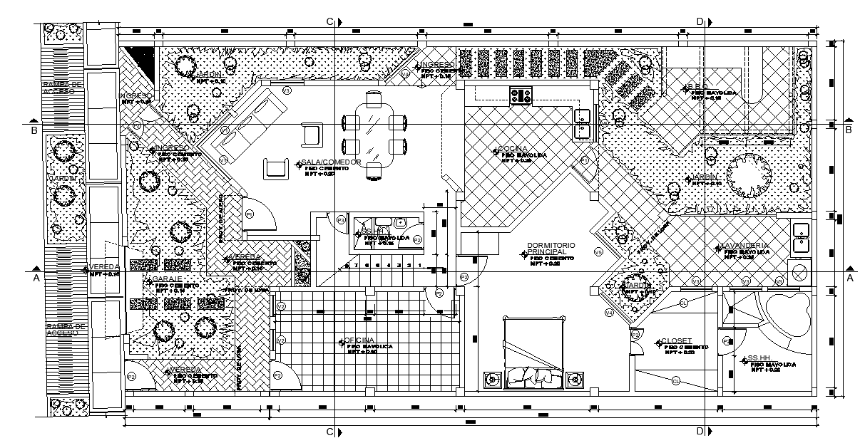
19x10m villa ground floor plan is given in this Autocad drawing file. This is G+1 villa building. In this plan, the kitchen, living area, dining hall, master bedroom with attached toilet, verandah, office, access area, family lounge and other details are given. For more details download the Autocad file. Thank you for downloading the Autocad file and other CAD program files from our website.
Uploaded by:

