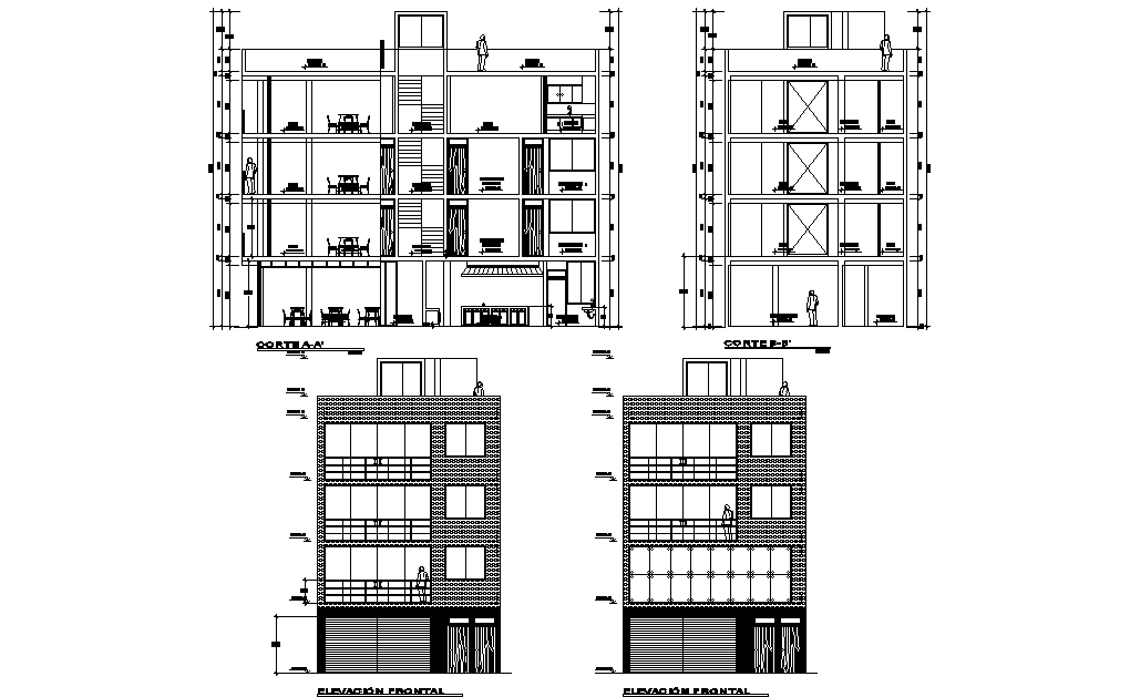
14m height of the multifamily apartment building section view is given in this Autocad drawing file. Download now.
Description
14m height of the multifamily apartment building section view is given in this Autocad drawing file. This is G+3 apartment building. In this house plan, the living area, dining hall, kitchen, master bedroom with attached toilet, guest room and common toilet is available. For more details download the Autocad file. Thank you for downloading the Autocad file and other CAD program files from our website.
Uploaded by:

