12x28m house plan is given in this Autocad drawing file. Download now.
Description
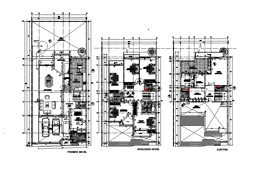
12x28m house plan is given in this Autocad drawing file. This is G+2 house plan. In the ground floor, the living area, car parking, kitchen, dining area, breakfast dining, common toilet is available. In the first floor, the master bedroom with attached toilet, two kid’s room, two guest room, two common toilets are available. In the second floor, the master bedroom with attached toilet, gym, common toilet, hall and other details are available. For more details download the Autocad file. Thank you for downloading the Autocad files and other CAD program files from our website.
Uploaded by:

