33x8m office plan is given in this Autocad drawing file. Download now.
Description
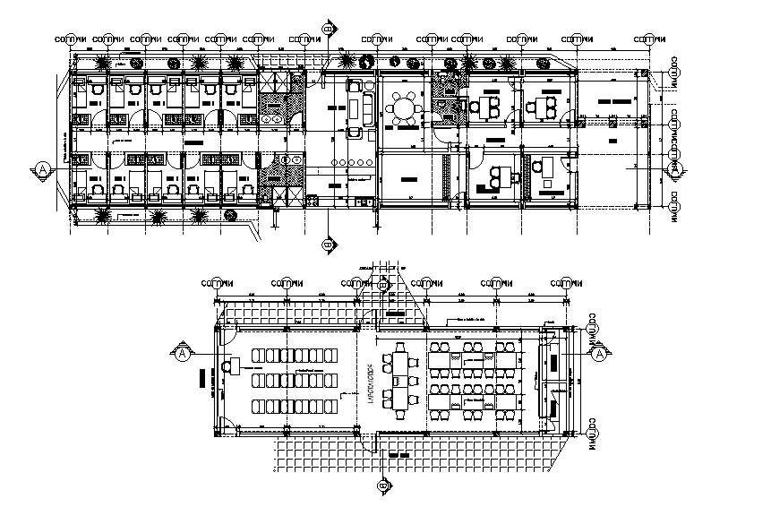
33x8m office plan is given in this Autocad drawing file. This is single story office plan. In this plan, office cabins, patio services, social area, auditorium, roof room for multiple use and other details are available. For more details download the Autocad file. Thank you for downloading the Autocad files and other CAD program files from our website.
Uploaded by:

