26x20m communal centre plan is given in this Autocad drawing file. Download now.
Description
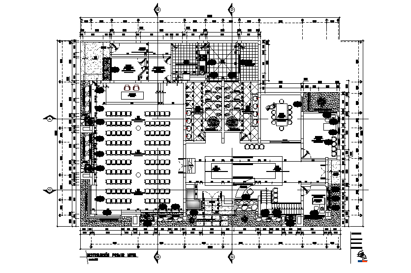
26x20m communal centre plan is given in this Autocad drawing file. This is single story communal building. In this plan, the dining area, reception, water closet for male & female, community hall and other details are given in this drawing model. For more details download the Autocad file. Thank you for downloading the Autocad files and other CAD program files from our website.
Uploaded by:

