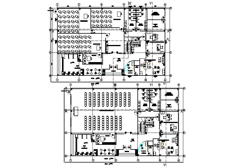
24x15m college cad block is given in this Autocad drawing file. Download now.

24x15m college cad block is given in this Autocad drawing file.  Download now.
Profile

Uploaded by:

Meera

Description
24x15m college cad block is given in this Autocad drawing file. This is G+1 college building. In this class rooms, laboratory, seminar hall, library, water closet for male & female, and other and other details are given in this drawing model. For more details download the Autocad file. Thank you for downloading the Autocad files and other CAD program files from our website.
Profile

Uploaded by:

Meera

find Latest

Related Files

WhatsApp Chat