10x20m office plan is given in this Autocad drawing file.Download now.
Description
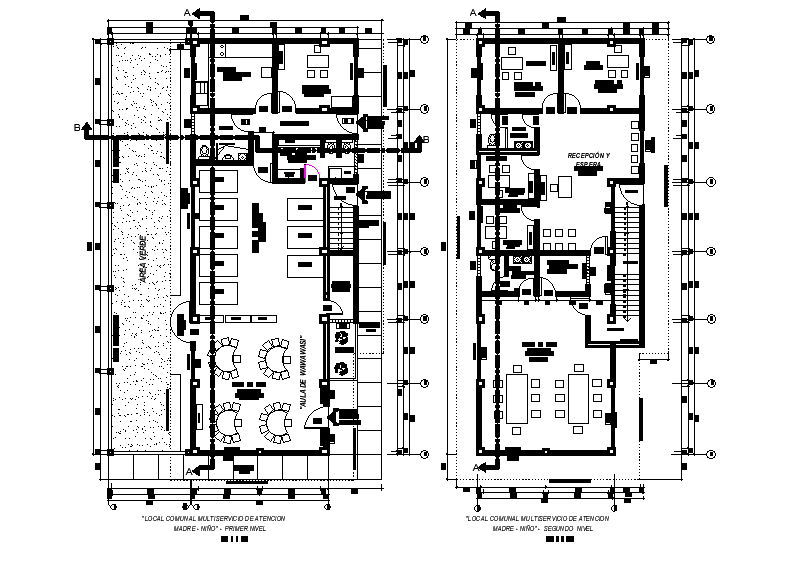
10x20m office plan is given in this Autocad drawing file. This is G+1 office building. In this plan, office cabins, kitchen, store room, patio services, social area, conference room, director room and other details are available. For more details download the Autocad file. Thank you for downloading the Autocad files and other CAD program files from our website.
Uploaded by:

