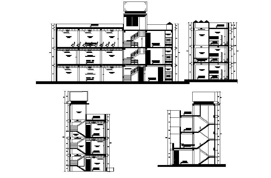
A section view of 27x9m hospital building is given in this Autocad drawing file. Download now.

A section view of 27x9m hospital building is given in this Autocad drawing file.  Download now.
Profile

Uploaded by:

Meera

Description
A section view of 27x9m hospital building is given in this Autocad drawing file. This is G+2 hospital building. Reception, waiting area, pharmacy, doctors consulting room, x ray room, water closet for male & female and other details are specified in this drawing model. For more details download the Autocad file. Thank you for downloading the Autocad files and other CAD program files from our website.
Profile

Uploaded by:

Meera

find Latest

Related Files

WhatsApp Chat