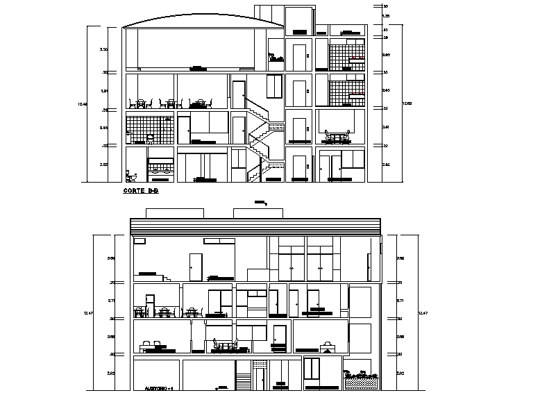
13m height of the office building section view is given in this Autocad drawing model. Download now.
Description
13m height of the office building section view is given in this Autocad drawing model. This is G+3 office building. Waiting area, Administration, computer area, conference room, dining area, rest room for male & female, reception, and other details are mentioned in this drawing model. For more details download the Autocad file. Thank you for downloading the Autocad files and other CAD program files from our website.
Uploaded by:

