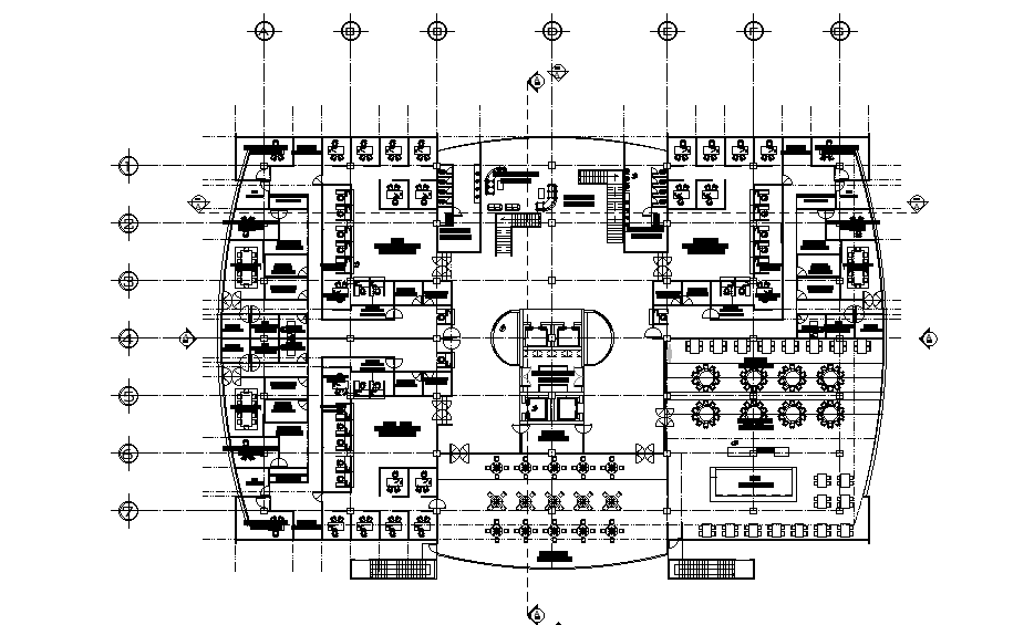
The commercial office building ground floor drawing is given in this file. Download this 2d AutoCAD drawing file.
Description
The commercial office building ground floor drawing is given in this file. this CAD drawing includes the toilet, pantry, staircase, lift, and entrance lobby. the additional drawing such as column layout plan and wall detail. download DWG file of commercial building layout plan drawing DWG file. Thank you for downloading the Autocad dwg drawing file from our website.
Uploaded by:

