43x52m hospital plan is given in this Autocad drawing file.Download now.
Description
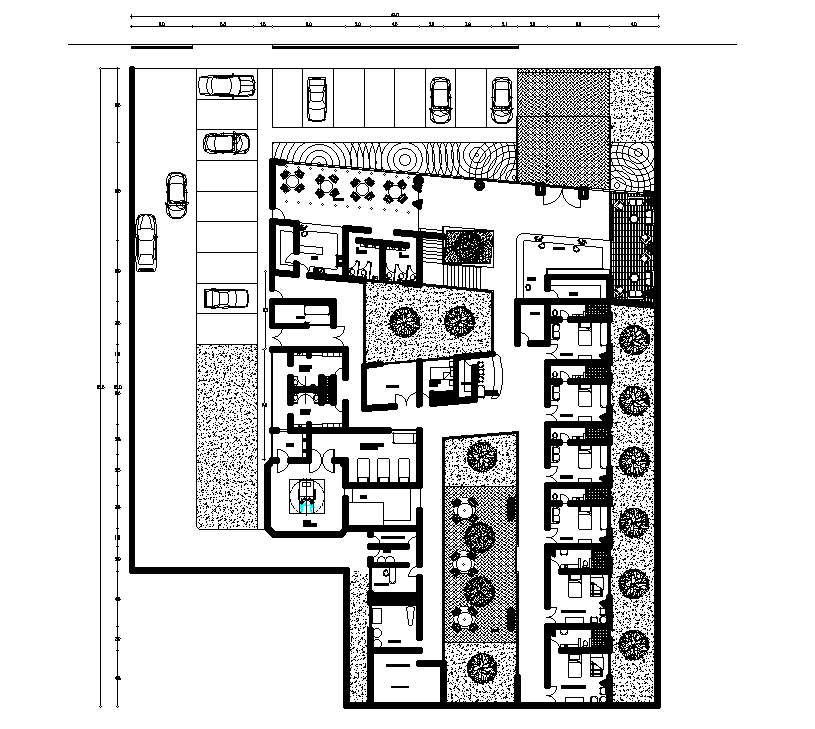
43x52m hospital plan is given in this Autocad drawing file. This is G+1 hospital building. Car parking, reception, waiting area, doctors consulting room, toilet for male & female, patient’s beds, nurse station, operation theatre, emergency ward and other details are mentioned. For more details download the Autocad drawing file. Thank you for downloading the Autocad drawing file and other CAD program files from our website.
Uploaded by:

