80x60m architecture office layout is given in this Autocad drawing file. Download now.
Description
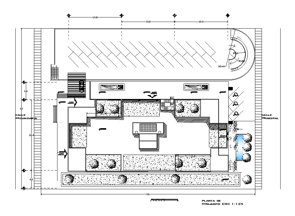
80x60m architecture office layout is given in this Autocad drawing file. This is G+3 office building. Car parking, elevator, rest room for male & female and other details are available in this basement floor. For more details download the Autocad drawing file. Thank you for downloading the Autocad file and other CAD program files from our website.
Uploaded by:

