Electrical layout of 16x9m house building is given in this Autocad drawing file. Download now.
Description
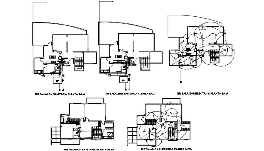
Electrical layout of 16x9m house building is given in this Autocad drawing file. This is G+1 house building. Kitchen, dining area, car parking, patio, master bedroom with attached toilet, kid’s room, guest room, common toilet and living area is available. For more details download the Autocad file. Thank you for downloading the Autocad file and other CAD program files from our website.
Uploaded by:

