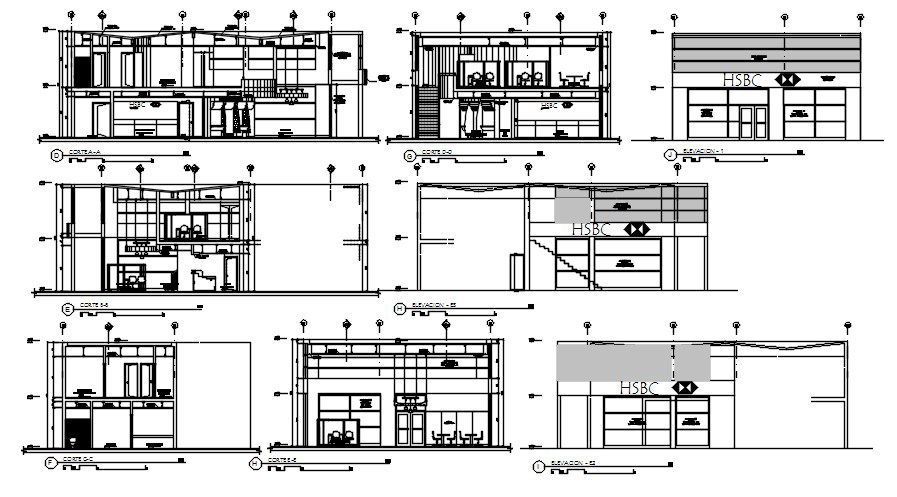
A section view of 12x16m office building is given in this Autocad drawing file. Download now.
Description
A section view of 12x16m office building is given in this Autocad drawing file. This is G+1 office building. Work area, office cabins, rest room for gents, rest room for ladies, kitchen, conference room and other details are given in this model. For more details download the Autocad file. Thank you for downloading the Autocad file and other CAD program files from our website.
Uploaded by:

