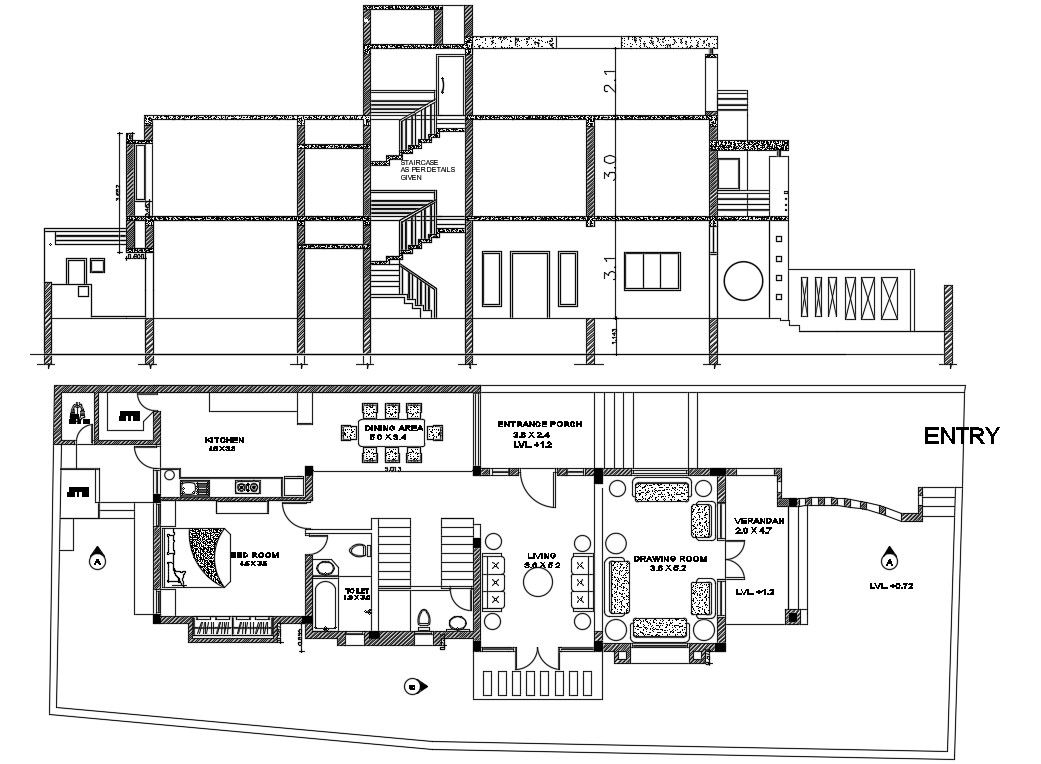
19x10m first floor house plan with section view is given in this Autocad 2D DWG drawing file. Download now.
Description
19x10m first floor house plan with section view is given in this Autocad 2D DWG drawing file. This is G+1 house building. In this house, family lounge area, puja room, study room, master bedroom with toilet & bath tub, kid’s room with attached toilet, guest room with attached toilet, verandah and passage is available. For more details download the Autocad file. Thank you for downloading the Autocad file and other CAD program files from our website.
Uploaded by:

